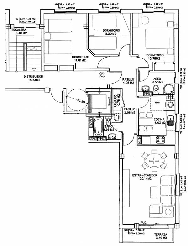
Piso 2º C
Reservado
- Superficie: 82,89 m2
- Estado: De nueva construcción. Sin usar.
- Habitaciones: 3.
- Todas exteriores.
- Dos de ellas con armarios empotrados de obra.
- Baños: 2.
- Uno con ducha, otro con bañera.
- Cocina amueblada: No.
- Terraza: Si.
- De 3,5 m2 aproximadamente.
- Con vistas a la ría de Corme y Lage.
- Ascensor, trastero y garaje: Si.
- Orientación: Este-Oeste.
- Le da el sol todo el día. Por la mañana en el salón y por la tarde en las habitaciones.
- Contacto: pisoscorme@gmail.com